PavonImmobiliare di Pavoni Nicola
Via Antonelli, 27 - 51100 Pistoia PT
Tel/Fax 0573/762124
Cell. 338/2843385
Email info@pavonimmobiliare.it

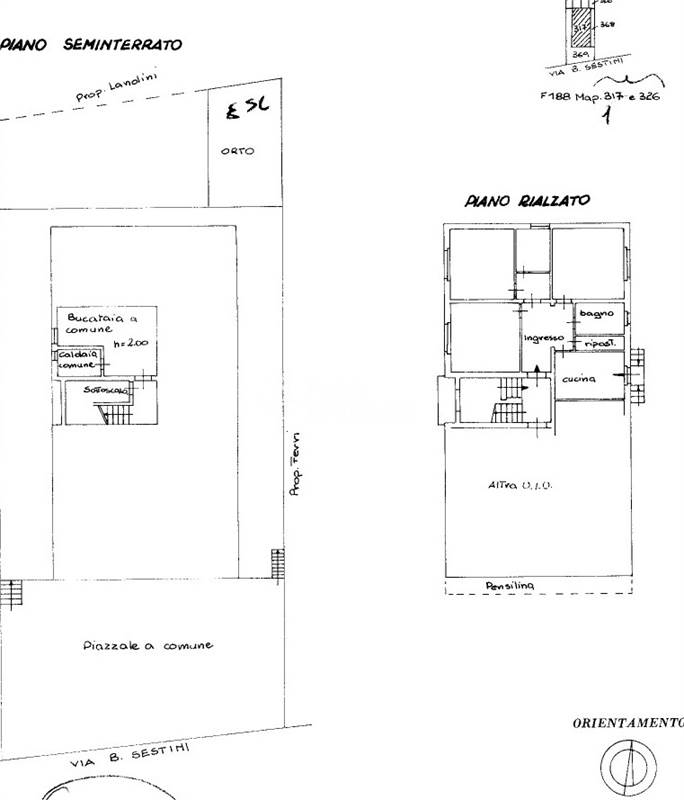
Descrizione


Caratteristiche principali

Stato Immobile
Buono
Grado
Medio
Posizione
Periferia
Panorama
Vista Aperta
Lati Liberi
3
Giardino
Privato
Arredi
Non Arredato
Tipo Soggiorno
Soggiorno
Tipo Cucina
Abitabile
Riscaldamento
Autonomo
Tipo Riscaldam.
Caldaia
Tipo Impianto
Radiatori
Fonte Energetica
Metano
Acqua Calda
Autonoma
Infissi
Legno
Accessori:

Mappa

Via Sestini , Pistoia (PT)

Richiedi informazioni

Invia
Cookie preference