PavonImmobiliare di Pavoni Nicola
Via Antonelli, 27 - 51100 Pistoia PT
Tel/Fax 0573/762124
Cell. 338/2843385
Email info@pavonimmobiliare.it

Descrizione

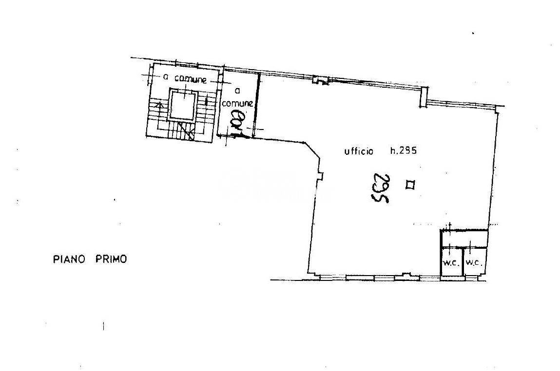
In zona Masotti, nel comune di Serravalle Pistoiese, proponiamo in vendita (con possibilità anche di affitto) un ampio ufficio situato al primo piano di una palazzina degli anni ’90, servita da ascensore.

L’immobile si presenta attualmente suddiviso in cinque ambienti distinti, ideali per studi professionali, coworking o attività che necessitano di più postazioni. La disposizione interna offre comunque un’ottima flessibilità, permettendo una facile riorganizzazione degli spazi in base alle proprie esigenze. Completano la proprietà due bagni, già a norma e funzionali.

Un ulteriore punto di forza è la possibilità di trasformazione in civile abitazione, rendendo l’immobile interessante anche per chi cerca una soluzione residenziale personalizzabile.

Ottima opportunità per professionisti o investitori alla ricerca di uno spazio versatile, ben servito e in posizione strategica.


N.B: l'indirizzo del presente annuncio è solo indicativo della zona, non rappresenta l'ubicazione esatta dell' immobile proposto.

PavonImmobiliare
A differenza di tutte le altre agenzie noi non ci limitiamo solo a mostrarti gli immobili che abbiamo nel nostro portafoglio, ma ci impegniamo a cercarti l’immobile ideale, per farti risparmiare tempo e ridurti lo stress.
Per questo motivo, prima di farti vedere l’immobile, ti chiederemo di fare una breve “intervista” telefonica o in agenzia, per capire insieme se le tue esigenze corrispondono a questa soluzione.
Così eviterai inutili giri a vuoto se l’immobile non risponde alle tue esigenze, in alternativa potremmo proporti altre soluzioni.


Caratteristiche principali

Stato Immobile
Ottimo
Grado
Economico
Posizione
Periferia
Panorama
Vista Aperta
Lati Liberi
2
Riscaldamento
Autonomo
Tipo Riscaldam.
Caldaia
Tipo Impianto
Radiatori
Fonte Energetica
Metano
Acqua Calda
Autonoma
Raffrescamento
Fan Coil
Accessori: Aria Condizionata, Ascensore, Rete Dati, Ripostiglio

Mappa

Via Provinciale Lucchese , Serravalle Pistoiese (PT)

Richiedi informazioni

Invia
Cookie preference